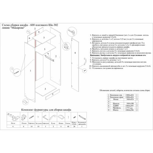
Сборка платяного шкафа может показаться сложной задачей, но с правильной схемой и инструкциями это становится гораздо проще. В этой статье мы предоставим вам подробную схему сборки платяного шкафа с пошаговыми инструкциями и множеством фотографий, чтобы помочь вам успешно справиться с этим заданием.
 
  
  
  
  
  
  
  
  
  
  
  
  
  
  
  
  
  
  
  
  
  
  
  
  
  
  
  
  
  
  
  
  
  
  
  
  
  
  
  
  
  
  
  
  
  
  
  
  
  
  
  
  
  
 Шаг 1: Подготовка к сборке
Перед тем как начать сборку, убедитесь, что у вас есть все необходимые инструменты и комплектующие. Распакуйте детали и убедитесь, что ничего не повреждено.
_2.png) 
  
  
  
  
  
  
  
  
  
  
  
  
  
  
  
  
  
  
  
  
  
  
  
  
  
  
  
  
  
  
  
  
  
  
  
  
  
  
  
  
  
  
  
  
  
  
  
  
  
  
  
  
 Шаг 2: Сборка основы шкафа
Начните сборку с основы шкафа, следуя инструкциям производителя. Убедитесь, что все детали правильно соединены и закреплены.
... (продолжение инструкции по сборке)Следуя этой подробной схеме сборки платяного шкафа, вы сможете быстро и легко собрать шкаф, который будет служить вам долгие годы.