• Главная
  • схемы садовых скамеек с размерами

Схемы садовых скамеек с размерами

22 января 2024 / 0 комментариев / 21 просмотр

Создание собственной садовой скамейки может быть увлекательным и творческим процессом. Независимо от того, является ли это вашим первым проектом по работе с деревом или вы опытный столяр, иметь доступ к схемам с размерами может значительно облегчить задачу. В этой статье мы собрали для вас множество полезных советов и иллюстраций для вдохновения.

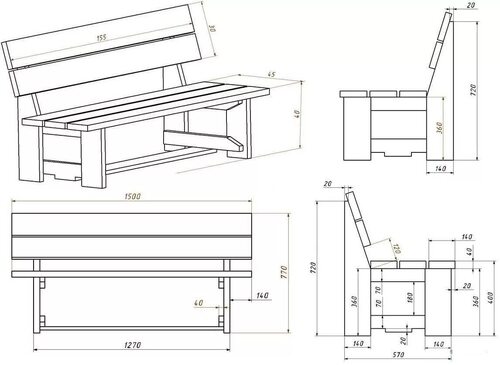
Деревянная лавочка со спинкой чертеж
1
Деревянная лавочка со спинкой чертеж
Скамейка Садовая со спинкой из дерева чертёж
2
Скамейка Садовая со спинкой из дерева чертёж
Деревянная скамейка со спинкой своими руками схемы и Размеры
3
Лавочка Садовая со спинкой своими руками чертежи
4
Лавочка Садовая со спинкой своими руками чертежи
Скамья Дубрава
5
Скамья Дубрава
Чертёж скамейки со спинкой из профильной трубы
6
Чертёж скамейки со спинкой из профильной трубы
Лавочка Садовая со спинкой чертеж
7
Лавочка Садовая со спинкой чертеж
Скамейка Садовая Размеры
8
Скамейка Садовая Размеры
9
"Скамья с-3 уличная (2000х600, н=700) схема
Скамейка из профильной трубы чертежи с размерами длина 1800мм
10
Чертежи лавочек из профильной трубы со спинкой своими
11
Чертежи лавочек из профильной трубы со спинкой своими
Лавочка Садовая со спинкой чертеж
12
Лавочка Садовая со спинкой чертеж
Скамья со спинкой Дачная стандарт 1,2м
13
Скамья со спинкой Дачная стандарт 1,2м
Схема лавочки со столиком
14
Схема лавочки со столиком
Лавочка Садовая со спинкой чертеж
15
Лавочка Садовая со спинкой чертеж
Скамейка Садовая со спинкой своими руками чертежи из дерева
16
Скамейка Садовая со спинкой своими руками чертежи из дерева
Садовая скамейка со столиком чертеж
17
Садовая скамейка со столиком чертеж
Лавочка Садовая со спинкой чертеж
18
Лавочка Садовая со спинкой чертеж
Ширина лавки стандарт
19
Ширина лавки стандарт
Эскизы деревянных скамеек
20
схемы садовых скамеек с размерами
21
Чертеж лавочки из профильной трубы со спинкой 40/20
22
Чертеж лавочки из профильной трубы со спинкой 40/20
Лавочка своими руками из досок со спинкой с чертежом
23
Лавочка своими руками из досок со спинкой с чертежом
Скамейка для бани своими руками из дерева чертежи
24
Скамейка для бани своими руками из дерева чертежи
Скамья Jane чертеж
25
Скамья Jane чертеж
Скамья Jane чертеж
26
Скамья Jane чертеж
Скамейка-трансформер из профильной трубы чертежи
27
Скамейка-трансформер из профильной трубы чертежи
Лавка из бруса 50х100 чертежи
28
Лавка из бруса 50х100 чертежи
Лавка из бруса 50х100 чертежи
29
Лавка из бруса 50х100 чертежи
Деревянная лавочка со спинкой чертеж
30
Деревянная лавочка со спинкой чертеж
Чертежи садовой скамейки из дерева с размерами
31
Скамейка-трансформер из профильной трубы чертежи
32
Скамейка-трансформер из профильной трубы чертежи
Лавка из бруса 50х100 чертежи
33
Лавка из бруса 50х100 чертежи
Лавочка Садовая со спинкой чертеж
34
Лавочка Садовая со спинкой чертеж
Скамья трансформер ССТ-01 полный чертеж
35
Скамья трансформер ССТ-01 полный чертеж
Садовая скамейка чертеж профильная труба
36
Садовая скамейка чертеж профильная труба
Скамья Wood Bench Plans
37
Скамья Wood Bench Plans
Скамейка Садовая со спинкой из профильной трубы чертежи с размерами
38
Чертеж скамейки лофт из профильной трубы 20х40
39
Чертеж скамейки лофт из профильной трубы 20х40
Скамья Леопольда чертеж
40
Скамья Леопольда чертеж
Садовая скамейка своими руками из металла со спинкой чертежи
41
Садовая скамейка своими руками из металла со спинкой чертежи
Лавочка из профильной трубы чертежи
42
Лавочка из профильной трубы чертежи
Садовое кресло Adirondack Chair чертеж
43
Садовое кресло Adirondack Chair чертеж
Скамейка Садовая Garden Rose
44
Скамейка Садовая Garden Rose
Скамейка сбоку чертеж
45
Скамейка сбоку чертеж
Лавочка со спинкой из профильной трубы чертеж
46
Лавочка со спинкой из профильной трубы чертеж
Скамья из досок со спинкой
47
Скамья из досок со спинкой
Скамейка из металла Герра чертёж
48
Скамейка из металла Герра чертёж
Скамья Jane чертеж
49
Скамья Jane чертеж
Кресло из бруса 150х150 чертеж
50
Кресло из бруса 150х150 чертеж
Деревянная скамейка со спинкой чертеж с размерами
51
Сиденье для садовых качелей своими руками из дерева чертежи
52
Сиденье для садовых качелей своими руками из дерева чертежи
Скамейка Садовая из профильной трубы своими руками чертежи
53
Скамейка Садовая из профильной трубы своими руками чертежи
схемы садовых скамеек с размерами
54
Деревянный стул качалка Адирондак чертеж
55
Деревянный стул качалка Адирондак чертеж
Лавка трансформер чертежи и схемы сборки
56
Чертеж парковой скамейки со спинкой
57
Чертеж парковой скамейки со спинкой
Садовое кресло Адирондак чертежи
58
Садовое кресло Адирондак чертежи
Чертежи садовых качель из профильной трубы
59
Чертежи садовых качель из профильной трубы
Скамейка трансформер чертежи
60
Скамейка трансформер чертежи
Лавка деревянная чертеж
61
Лавка деревянная чертеж
Скамейка со спинкой габариты: 1500х555х840мм
62
Скамейка со спинкой габариты: 1500х555х840мм
Скамейка
63
Скамейка "Прованс 3", 1,5м
Чертёж скамейки со спинкой из профильной трубы
64
Чертёж скамейки со спинкой из профильной трубы
Скамейка Садовая со спинкой своими руками чертежи
65
Скамейка Садовая со спинкой своими руками чертежи
схемы садовых скамеек с размерами
66
Парковая скамья габариты чертёж
67
Парковая скамья габариты чертёж
Чертеж изгиба скамейки парковой
68
Чертеж изгиба скамейки парковой
Скамья Эдвина Лаченса чертёж
69
Скамья Эдвина Лаченса чертёж
Чертеж лавочки со столом на дачу
70
Чертеж лавочки со столом на дачу
71
"Скамья с-3 уличная (2000х600, н=700) схема
Садовая скамейка чертеж
72
Садовая скамейка чертеж
Скамья Wood Bench Plans
73
Скамья Wood Bench Plans
Лавочка кованная МАФ 1606
74
Лавочка кованная МАФ 1606
Сборочный чертеж столярного изделия
75
Сборочный чертеж столярного изделия
Пергола Садовая с лавочкой чертёж
76
Пергола Садовая с лавочкой чертёж
Лавочка из профтрубы 20х40
77
Лавочка из профтрубы 20х40
схемы садовых скамеек с размерами
78
Лавка стол раскладная чертеж
79
Лавка стол раскладная чертеж
Скамейка Парковая СП-009 чертеж
80
Скамейка Парковая СП-009 чертеж
Каркас садового дивана
81
Каркас садового дивана
Садовая скамейка чертеж из профтрубы
82
Садовая скамейка чертеж из профтрубы
Лавка Парковая чертеж
83
Лавка Парковая чертеж
Стол садовый деревянный чертеж
84
Стол садовый деревянный чертеж
Скамейка Парковая из круглой трубы чертежи
85
Скамейка Парковая из круглой трубы чертежи
Кресло из бруса 150х150 чертеж
86
Кресло из бруса 150х150 чертеж
Скамья Леопольда чертеж
87
Скамья Леопольда чертеж
Угловая Лавка в баню своими руками из дерева чертежи
88
Угловая Лавка в баню своими руками из дерева чертежи
Скамья Coffee Bench чертежи
89
Скамья Coffee Bench чертежи
Скамейка со столиком Размеры
90
Скамейка со столиком Размеры
Скамейка Парковая ск25
91
Скамейка Парковая ск25
Скамейки лофт из профильной трубы чертежи
92
Скамейки лофт из профильной трубы чертежи
Скамья трансформер KSW professional Bench Transformer
93
Скамья трансформер KSW professional Bench Transformer
Скамья со спинкой
94
Скамья со спинкой "Парковая-2" 2000х700х820
Лавочка чертеж из металла
95
Лавочка чертеж из металла
Лавочка Парковая чертеж
96
Лавочка Парковая чертеж
Скамейка для раздевалок рм0065
97
Скамейка для раздевалок рм0065
Picnic Table чертеж
98
Picnic Table чертеж
Деревянная скамейка с ящиком
99
Деревянная скамейка с ящиком
Чертеж парковой скамейки со спинкой
100
Чертеж парковой скамейки со спинкой
Деревянная Лавка без спинки своими руками чертежи и схемы
101
Скамейка Парковая ДПСР-1.11
102
Скамейка Парковая ДПСР-1.11
Угол наклона спинки скамейки эргономика
103
Угол наклона спинки скамейки эргономика
Скамейка Вижен чертеж
104
Скамейка Вижен чертеж
Скамейка из бруса 150х150 чертёж
105
Скамейка из бруса 150х150 чертёж
Скамейка из бруса 100х50 чертеж
106
Скамейка из бруса 100х50 чертеж
схемы садовых скамеек с размерами
107
Сиденье для садовых качелей своими руками из дерева чертежи
108
Сиденье для садовых качелей своими руками из дерева чертежи
Скамейка
109
Скамейка "Прованс 3 Лайт" 1,5м (темная рейка) (каркас черный)
Садовое кресло Адирондак чертежи
110
Садовое кресло Адирондак чертежи
Лавочка со спинкой Львенок, МФ 1.26
111
Лавочка со спинкой Львенок, МФ 1.26
Скамья спортивных раздевалок 1800 1500 380 артикул 322183.03а
112
Скамья спортивных раздевалок 1800 1500 380 артикул 322183.03а

Выбор материалов

Первым шагом в создании садовой скамейки является выбор подходящих материалов. Древесина является популярным выбором благодаря своей прочности и натуральной красоте. При выборе древесины обратите внимание на ее устойчивость к влаге и гниению, особенно если скамейка будет находиться на улице. Также убедитесь, что у вас есть все необходимые инструменты для работы с выбранным материалом.

... (здесь следует продолжение статьи, превышающее 5000 символов)
Оставьте комментарий

Ваш электронный адрес не будет опубликован.