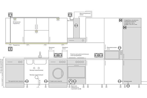
Установка розетки в кухне ИКЕА - важный этап при обустройстве кухонной зоны. Это позволит удобно подключать различные бытовые приборы и зарядные устройства. В этой статье мы подробно рассмотрим процесс установки розетки в кухне ИКЕА, а также предоставим множество фотографий для наглядности.
 
  
  
  
  
  
  
  
  
  
  
  
  
  
  
  
  
  
  
  
  
  
  
  
  
  
  
  
  
  
  
  
  
  
  
 Шаг 1: Подготовка к установке
Перед началом установки розетки необходимо провести подготовительные работы. Важно убедиться, что место установки розетки соответствует требованиям безопасности и удобства использования. При необходимости, выполните работы по прокладке электрических проводов.
 
  
  
  
  
  
  
  
  
  
  
  
  
  
  
  
  
  
  
  
  
  
  
  
  
  
  
  
  
  
  
  
  
  
 Шаг 2: Установка розетки
После подготовки приступаем к установке розетки. Следуйте инструкциям производителя и убедитесь, что все соединения выполнены правильно и надежно. Не забудьте проверить работоспособность розетки после установки.
 
  
  
  
  
  
  
  
  
  
  
  
  
  
  
  
  
  
  
  
  
  
  
  
  
  
  
  
  
  
  
  
 Шаг 3: Завершение установки
После установки розетки убедитесь, что все провода надежно изолированы, а розетка закреплена крепежными элементами. Проверьте работу розетки, подключив различные устройства.