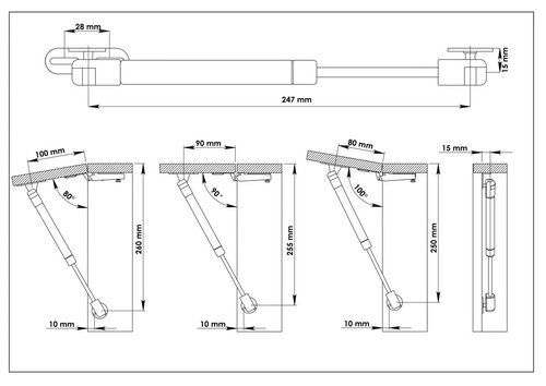
Газлифт – это устройство, которое позволяет открывать и закрывать дверцы мебели плавно и без усилий. Установка газлифта на мебель – задача, с которой справится каждый, следуя простой схеме.
 
  
  
  
  
  
  
  
  
  
  
  
  
  
  
  
  
  
  
  
 Шаг 1: Подготовка
Перед установкой газлифта необходимо подготовить поверхность мебели, на которой будет размещаться устройство. Убедитесь, что поверхность чистая и сухая.
 
  
  
  
  
  
  
  
  
  
  
  
  
  
  
  
  
  
  
  
  
  
 Шаг 2: Монтаж
Процесс установки газлифта начинается с крепления петель к мебельной дверце. После этого фиксируются петли на корпусе мебели. Важно следовать инструкции, прилагаемой к газлифту, для правильной установки.
 
  
  
  
  
  
  
  
  
  
  
  
  
  
 .jpg) 
  
  
  
  
  
 Шаг 3: Проверка
После установки газлифта необходимо проверить его работоспособность. Откройте и закройте дверцу мебели несколько раз, чтобы убедиться, что газлифт функционирует корректно.
 
  
  
  
  
  
  
  
  
  
  
  
  
  
  
  
  
  
  
  
 Шаг 4: Завершение
После успешной установки и проверки газлифта можно завершить процесс, наслаждаясь плавным и бесшумным открыванием и закрыванием дверцы мебели.