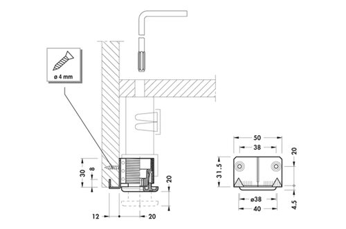
Ножка накладная регулируемая для шкафа - это важный элемент мебели, который обеспечивает не только устойчивость шкафа, но и позволяет корректировать его положение в пространстве. В данной статье мы рассмотрим особенности установки, регулировки и использования ножек накладных для шкафов.
 
  
  
  
  
  
  
  
  
  
  
  
  
  
  
  
  
  
  
  
  
  
  
  
  
  
 Установка ножки накладной
Перед установкой ножек необходимо подготовить место для их крепления. После этого производится монтаж ножек в соответствии с инструкцией производителя. Важно обеспечить равномерное распределение нагрузки на все ножки шкафа.
 
  
  
  
  
  
  
  
  
  
  
  
  
  
  
  
  
  
  
  
  
  
  
  
  
  
  
 Регулировка ножки накладной
После установки шкафа необходимо провести регулировку ножек для обеспечения горизонтального положения мебели. Для этого используются специальные регулировочные винты, которые позволяют поднять или опустить шкаф в зависимости от необходимости.
 
  
  
  
  
  
  
  
  
  
  
  
  
  
  
  
  
  
  
  
  
  
  
  
 Использование ножки накладной
Ножки накладные для шкафов обеспечивают не только устойчивость конструкции, но и позволяют удобно ухаживать за полом под шкафом. Они также предотвращают повреждение пола и обеспечивают возможность перемещения шкафа без повреждения напольного покрытия.