Разметка под петли мебельные 26 играет важную роль в процессе изготовления мебели. Правильная разметка позволяет установить петли точно и надежно, что в свою очередь обеспечивает долговечность и функциональность мебельного изделия.
 
  
  
  
  
  
  
  
  
  
  
  
  
  
  
  
  
  
  
  
  
  
  
  
  
  
  
  
  
  
  
  
  
  
  
  
  
  
  
  
  
  
  
  
  
 Этапы разметки под петли мебельные 26
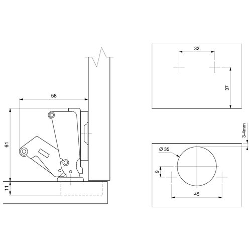
Первый этап – подготовка поверхности, на которой будет устанавливаться петля. Далее следует определить точное местоположение петель на двери или крышке мебельного изделия. После этого производится разметка с учетом размеров и типа петель. Важно учесть все особенности конструкции мебели и обеспечить точное выравнивание петель.
Для наглядности примеров и дополнительной информации смотрите фотографии в галерее ниже.
 
  
  
  
  
  
  
  
  
  
  
  
  
  
  
  
  
  
  
  
  
  
  
  
  
  
  
  
  
  
  
  
  
  
  
  
  
  
  
  
  
  
  
  
  
 Заключение
Правильная разметка под петли мебельные 26 – важный этап процесса изготовления мебели. Следуя рекомендациям и используя правильные инструменты, вы сможете установить петли надежно и точно, что обеспечит долговечность и функциональность вашей мебели.