Дизайн однокомнатной квартиры - это увлекательное и творческое занятие. Современные тенденции в интерьерном дизайне позволяют создать уютное и функциональное пространство в небольших квартирах. В этой статье мы рассмотрим различные схемы дизайна однокомнатной квартиры, а также представим множество фотографий для вдохновения.
 
  
  
  
  
  
  
  
  
  
  
  
  
  
  
  
  
  
  
  
  
  
  
  
  
  
  
  
  
  
  
  
  
  
  
  
  
  
  
  
  
  
  
  
  
  
  
  
  
  
  
  
  
  
  
 Планировка и расстановка мебели
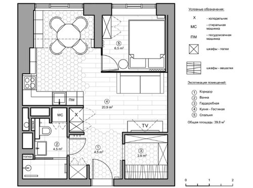
Первым шагом в создании дизайна однокомнатной квартиры является разработка планировки и расстановка мебели. Важно учитывать особенности пространства и стремиться к оптимальному использованию каждого квадратного метра. Существует множество схем и идей по распределению зон в однокомнатной квартире, и выбор зависит от индивидуальных предпочтений и потребностей хозяев.
Различные способы размещения мебели, использование раздвижных перегородок или многофункциональных мебельных элементов позволяют оптимизировать пространство и создать комфортную обстановку.
 
  
  
  
  
  
  
  
  
  
  
  
  
  
  
  
  
  
  
  
  
  
  
  
  
  
 .jpg) 
  
  
  
  
  
  
  
  
  
  
  
  
  
  
  
  
  
  
  
  
  
  
  
  
  
  
  
  
  
 Цветовые решения
Выбор цветовой гаммы играет важную роль в создании дизайна однокомнатной квартиры. Светлые оттенки могут визуально увеличить пространство, в то время как насыщенные цвета придают интерьеру индивидуальность и стиль. Важно умело сочетать цвета и создавать гармоничные композиции, чтобы каждая зона квартиры выглядела привлекательно и уютно.
Мы надеемся, что наши идеи по схемам дизайна однокомнатной квартиры вдохновят вас на творческий подход к оформлению вашего жилища. Приглашаем вас ознакомиться с фотографиями интерьеров, чтобы найти свою уникальную концепцию.