• Главная
  • схема шкафа учета электроэнергии 380в

Схема шкафа учета электроэнергии 380в

21 февраля 2024 / 0 комментариев / 21 просмотр

Схема шкафа учета электроэнергии 380в представляет собой важный элемент электрооборудования, который обеспечивает точный учет и контроль электропотребления в системах с напряжением 380 вольт.

Однофазный щит учета схема подключения
1
схема шкафа учета электроэнергии 380в
2
Схема щита учета электроэнергии 380в для частного дома 15 КВТ уличный
3
Трехфазный щит учета 15 КВТ схема подключения
4
схема шкафа учета электроэнергии 380в
5
Щит учёта 380 схема
6
Щит учёта 380 схема
7
Трехфазный щит учета электроэнергии схема подключения
8
Трехфазный щит учета 15 КВТ схема подключения
9
Схема уличного щита учета
10
Принципиальная схема щита учета электроэнергии 380в
11
Схема щита учета
12
Схема щита учёта 380 вольт
13
Однолинейная схема подключения счетчика электроэнергии
14
схема шкафа учета электроэнергии 380в
15
Схемы распределительных щитов на 380 15квт
16
Схемы распределительных щитов на 380 15квт
Электрическая схема электрощита 380в
17
Схема щитка учета электроэнергии 220в
18
Схема внешнего электроснабжения частного дома 15 КВТ
19
Однолинейная схема учета электроэнергии
20
Щит учета трехфазный 15 КВТ схема
21
Схема вводно распределительного щита 380 в в доме
22
Трехфазный щит учета электроэнергии схема подключения
23
Щит учёта 380 в 15 КВТ оин УЗО
24
Щит учёта 380 в 15 КВТ оин УЗО
Щит учёта 380 без счетчика
25
Щит учёта 380 без счетчика
Схема щита 380в для частного дома 15 КВТ С УЗИП
26
Схема сборки 3-фазного распределительного электрощита
27
Схема 3 фазного электрощита 15 КВТ
28
Схема вводно распределительного щита 380 в в доме
29
3х фазный щит учета система ТТ
30
Щит учёта электроэнергии 3-х фазный 15квт
31
Схема подключения УЗО В распределительном щите
32
Схемы подключения автоматов в трехфазном щите
33
Схемы подключения автоматов в трехфазном щите
Схема расключения электрощита 3 фазы
34
Ограничитель импульсных напряжений схема подключения
35
Схема подключения распределительного щита в частном доме 380 в
36
Щит учета электроэнергии 15 КВТ 380в
37
Узел учета 15 КВТ Меркурий
38
Схема сборки электрощита с счетчиком 220
39
Распределительный щит 380 вольт 15 КВТ
40
Распределительный щит 380 вольт 15 КВТ
Сборка щита учёта 380
41
Сборка щита учёта 380
Схема 3-х фазного электрощита
42
Щит учета электроэнергии 100 КВТ 380в
43
Щит учета 380 СНТ
44
Щиток электрический квартирный схема подключения однофазного
45
Схема распределительного щита 380в
46
Электрощит на 15 КВТ
47
Электрощит на 15 КВТ
Вводной электрощит 380в
48
Вводной электрощит 380в
Щит учета электроэнергии 15 КВТ 380в
49
Схема распределительного электрощита на 380 вольт
50
Распределительный щит 380 вольт 15 КВТ
51
Распределительный щит 380 вольт 15 КВТ
Щит учета ВРУ 15квт 380в
52
Схема подключения УЗО 380в трёхфазный
53
Щит учета СИП 2х16 РБП
54
Схема подключения вводного щита на 220
55
Щит 380 вольт 15 КВТ В частном доме
56
Щит 380 вольт 15 КВТ В частном доме
Распределительный щит в частном доме 15 КВТ 380 В
57
Распределительный щит в частном доме 15 КВТ 380 В
схема шкафа учета электроэнергии 380в
58
Щит 380 вольт 15 КВТ. СИП
59
Щит 380 вольт 15 КВТ. СИП
Схема щитка учета электроэнергии 220в
60
Распределительный щит 380 вольт 15 КВТ
61
Распределительный щит 380 вольт 15 КВТ
Схема щита учета электроэнергии 220в для частного
62
Щит учёта 380 вольт с нулевой шиной
63
Щит учёта 380 вольт с нулевой шиной
Схема АВР С секционным выключателем
64
Щит учета 380 СНТ
65
Щиток электрический квартирный схема подключения однофазного
66
Трансформаторы тока учета 0.4 кв на АРС
67
Схема разводки распределительного щита
68
Проект схема электроснабжения частного дома 15 КВТ 3 фазы
69
схема шкафа учета электроэнергии 380в
70
схема шкафа учета электроэнергии 380в
71
Электрическая схема распределительного щита 380в
72
Схема щитка учета электроэнергии 220в
73
схема шкафа учета электроэнергии 380в
74
KONSTARTSTUDIO схемы трехфазного щита 380в
75
KONSTARTSTUDIO схемы трехфазного щита 380в
3х фазная схема распределительного щита
76
Монтажная схема электрощита 380в
77
Щит учёта 380 вольт 15 КВТ
78
Щит учёта 380 вольт 15 КВТ
Схема подключения электрощитка в частном доме 220в
79
Щит 380 вольт 15 КВТ заземление
80
Щит 380 вольт 15 КВТ заземление
Щиток электрический схема сборки
81
Схема сборки трехфазного электрощита
82
Схема сборки 3-фазного распределительного электрощита
83
Электрощит на 15 КВТ 380 вольт
84
Электрощит на 15 КВТ 380 вольт
Однолинейная схема подключения счетчика электроэнергии
85
Схема сборки 3-фазного распределительного электрощита
86
Электрощит на 15 КВТ 380 вольт
87
Электрощит на 15 КВТ 380 вольт
Однолинейная схема подключения счетчика электроэнергии
88
Щит учёта 380 ИЭК
89
Щит учёта 380 ИЭК
Схема подключения строительной площадки к электроснабжению
90
Схема заземления ВРУ-0.4 кв
91
Щит учета ВРУ 15квт 380в
92
схема шкафа учета электроэнергии 380в
93
схема шкафа учета электроэнергии 380в
94
Схема подключения счетчика три фазы
95
Схема щита подключение электричества к частному дому 15 КВТ
96
Щит 380 вольт 15 КВТ на столб
97
Щит 380 вольт 15 КВТ на столб
Схема щита для частного дома 380 15 КВТ схема
98
Вводной электрощит 380в
99
Вводной электрощит 380в
Щит 380 в с УЗИП
100
Щит 380 в с УЗИП
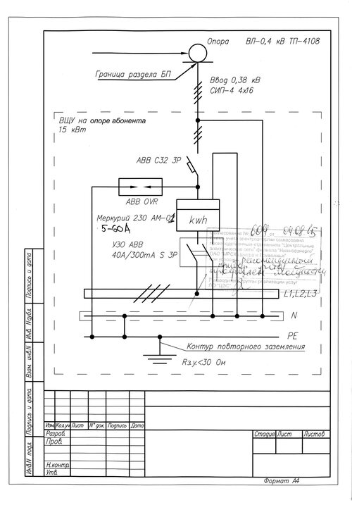
Шкаф учета на опоре вл 0.4 кв
101
Щит учёта 220в Меркурий
102
Щит учёта 220в Меркурий
схема шкафа учета электроэнергии 380в
103
Щит учета электроэнергии 15 КВТ 380в
104
Схема электроснабжения коттеджа 380в
105
Щит учета СИП 2х16
106
Трехфазная схема распределительного щита
107
Щит учёта 380 Меркурий
108
Щит учёта 380 Меркурий
Распределительный щиток для трехфазной сети 15 КВТ
109
Распределительный щиток для трехфазной сети 15 КВТ
Схема электроснабжения дома 15 КВТ 3 фазы
110
Комплектация щит учета 85квт
111
Щит учета ВРУ 15квт 380в
112

Основные компоненты шкафа учета электроэнергии 380в

Шкаф учета электроэнергии 380в состоит из ряда ключевых компонентов, включая счетчики, защитные устройства, автоматы и другие элементы, каждый из которых играет важную роль в обеспечении стабильной и безопасной работы электросетей.

Оставьте комментарий

Ваш электронный адрес не будет опубликован.