• Главная
  • верхние шкафы кухни размеры высоты стандарты

Верхние шкафы кухни: стандартные размеры и высота

7 января 2024 / 0 комментариев / 20 просмотров

Верхние шкафы кухни играют важную роль в организации пространства и обеспечивают удобство хранения кухонной утвари. Они должны быть не только функциональными, но и гармонично вписываться в интерьер. Одним из ключевых аспектов при выборе верхних шкафов являются их размеры и высота.

Ширина верхних кухонных шкафов стандарт
1
Ширина верхних кухонных шкафов стандарт
Стандартная высота верхних кухонных шкафов Селена 205
2
Стандартная высота верхних кухонных шкафов Селена 205
Стандартная высота верхних кухонных шкафов Селена 205
3
Стандартная высота верхних кухонных шкафов Селена 205
Стандартная высота верхних кухонных шкафов Селена 205
4
Стандартная высота верхних кухонных шкафов Селена 205
Высота кухонной столешницы стандарт для кухни 80
5
Высота столешницы на кухне стандарт
6
Высота столешницы на кухне стандарт
Ширина кухонных шкафчиков стандарт
7
Ширина кухонных шкафчиков стандарт
Кухня Люкс лоза 2.0 БТС
8
Кухня Люкс лоза 2.0 БТС
верхние шкафы кухни размеры высоты стандарты
9
Размеры кухонных шкафов
10
Кухня
11
Кухня "София" (1,8 м) 3d (белый/бирюза)
Кухня Тристан хофф
12
Кухня Тристан хофф
Размер кухонных шкафов стандарты ширина
13
Кухонный гарнитур София 1.8 3d
14
Кухонный гарнитур София 1.8 3d
Кухня Велес модули
15
Кухня Велес модули
Стандартная высота верхних кухонных шкафов Селена 205
16
Стандартная высота верхних кухонных шкафов Селена 205
Ширина кухонной столешницы стандарт
17
Ширина кухонной столешницы стандарт
Глубина кухонного модуля
18
Глубина кухонного модуля
Стандартная высота верхних кухонных шкафов Селена 205
19
Стандартная высота верхних кухонных шкафов Селена 205
Высота кухонной столешницы стандарт для кухни 80
20
Кухня
21
Кухня "Татьяна" ЛДСП 2,0м (Комби БД)
Высота столешницы кухонного гарнитура стандарт для кухни от пола
22
Кухонный гарнитур Hoff Сити
23
Кухонный гарнитур Hoff Сити
Кухня Паола хофф
24
Кухня Паола хофф
Кухня модульная Halmar Margaret 3
25
Кухня модульная Halmar Margaret 3
Стандартная высота верхних кухонных шкафов Селена 205
26
Стандартная высота верхних кухонных шкафов Селена 205
Ширина кухонной столешницы стандарт
27
Ширина кухонной столешницы стандарт
Высота кухонной столешницы стандарт
28
Высота кухонной столешницы стандарт
Стандартная высота верхних кухонных шкафов Селена 205
29
Стандартная высота верхних кухонных шкафов Селена 205
Модульная кухня Констанция графит
30
Модульная кухня Констанция графит
Размеры кухонных секций
31
Стандартная высота верхних кухонных шкафов Селена 205
32
Стандартная высота верхних кухонных шкафов Селена 205
Кухня Флоренция интерьер центр
33
Кухня Флоренция интерьер центр
Кухня Розалия 1.7
34
Кухня Розалия 1.7
Высота кухонной столешницы стандарт
35
Высота кухонной столешницы стандарт
Высота кухни от пола со столешницей стандартная высота
36
Размеры кухонных модулей стандарт
37
верхние шкафы кухни размеры высоты стандарты
38
Высота кухни от пола со столешницей стандартная высота
39
Кухня угловая 900x2100 левая,
40
Кухня угловая 900x2100 левая,
Высота кухонной столешницы стандарт
41
Высота кухонной столешницы стандарт
Кухонный верхний модуль высотой 900мм
42
Кухонный верхний модуль высотой 900мм
Кухонная столешница Размеры стандарт
43
Высота кухонных шкафов с антресолью
44
Высота кухонных шкафов с антресолью
Высота кухонной столешницы стандарт для кухни
45
Кухня София олива 2.1 м
46
Кухня София олива 2.1 м
Высота кухни икеа со столешницей
47
Размер кухонного шкафа навесного стандарт
48
Размер кухонного шкафа навесного стандарт
Высота кухонной столешницы стандарт для кухни
49
Высота столешницы кухонного гарнитура стандарт для кухни от пола
50
Кухонный шкаф чертежи gola
51
Кухонный шкаф чертежи gola
Высота крепления закладной для кухонных шкафов
52
Высота крепления закладной для кухонных шкафов
Высота кухни эргономика
53
Размер кухни Оптима Лайт
54
Стандартная высота нижних кухонных шкафов без столешницы
55
Стандартная высота нижних кухонных шкафов без столешницы
Высота кухонной столешницы стандарт
56
Высота кухонной столешницы стандарт
Расположение навесных шкафов на кухне
57
Расположение навесных шкафов на кухне
Планировка угловой кухни
58
Стандартные Размеры навесных кухонных шкафов
59
Кухня Симпл угловая 1600 2200
60
Кухня Симпл угловая 1600 2200
Küche Vario Basic II 240cm схема
61
Küche Vario Basic II 240cm схема
Типоразмеры кухни икеа
62
Кухонный гарнитур Трапеза Престиж Боровичи мебель
63
Кухонный гарнитур Трапеза Престиж Боровичи мебель
Кухонный гарнитур Сабрина Экстра 1700
64
Кухонный гарнитур Сабрина Экстра 1700
Васаби кух. Гарнитур 1,9l венге/зеленый 76140170 (Кол.уп=3)
65
Васаби кух. Гарнитур 1,9l венге/зеленый 76140170 (Кол.уп=3)
Глубина верхних шкафов кухни стандарт
66
верхние шкафы кухни размеры высоты стандарты
67
Стандартная ширина верхнего шкафчика на кухне
68
Стандартная ширина верхнего шкафчика на кухне
Двухуровневая кухня чертеж
69
Двухуровневая кухня чертеж
Чертежи раскроя кухонной мебели
70
Чертежи раскроя кухонной мебели
Высота кухонного шкафа навесного стандарт
71
Высота кухонного шкафа навесного стандарт
Ширина кухонных шкафов стандарт таблица
72
Ширина кухонных шкафов стандарт таблица
Кухонный гарнитур 3м прямой с холодильником чертеж
73
Кухонный гарнитур 3м прямой с холодильником чертеж
Глубина кухонных шкафов нижних
74
Глубина кухонных шкафов нижних
Модульная кухня «Бьюти» оранж/Грэй
75
Модульная кухня «Бьюти» оранж/Грэй
Высота столешницы на кухне стандарт
76
Высота столешницы на кухне стандарт
Высота кухонной столешницы стандарт
77
Высота кухонной столешницы стандарт
Высота фасадов кухни стандарт
78
Высота кухни эргономика
79
Высота фартука на кухне стандарт
80
Высота фартука на кухне стандарт
Стандартная ширина шкафчика на кухне
81
Стандартная ширина шкафчика на кухне
Кухня София олива 2.1 м
82
Кухня София олива 2.1 м
верхние шкафы кухни размеры высоты стандарты
83
верхние шкафы кухни размеры высоты стандарты
84
Фото чертёж кухний мебел
85
Фото чертёж кухний мебел
верхние шкафы кухни размеры высоты стандарты
86
Трапеза классика угловая 1200х2100 мм
87
Трапеза классика угловая 1200х2100 мм
верхние шкафы кухни размеры высоты стандарты
88
Двухуровневый кухонный гарнитур чертеж
89
Двухуровневый кухонный гарнитур чертеж
Угловой кухонный гарнитур 2000х1400 схема
90
Угловой кухонный гарнитур 2000х1400 схема
Кухонный модуль шв 600.800 сборка
91
Кухонный модуль шв 600.800 сборка
Кухонный гарнитур Катя 2м сборка
92
Кухонный гарнитур Катя 2м сборка
Бланка СТЛ.234.00РЗ кухонный гарнитур
93
Бланка СТЛ.234.00РЗ кухонный гарнитур
Высота установки навесных кухонных шкафов
94
Высота установки навесных кухонных шкафов
Высота верхних кухонных шкафов
95
Высота верхних кухонных шкафов
Высота верхних шкафов кухни стандарт от столешницы
96
Кухня модульная Halmar Amanda 1 260, Акация
97
Кухня модульная Halmar Amanda 1 260, Акация
Кухня Люкс 240 много мебели габариты
98
Кухня Люкс 240 много мебели габариты
Схема высота кухонных шкафов
99
Схема высота кухонных шкафов
Кухня икеа высота кухни
100
Стандартные кухонные гарнитуры
101
Стандартные кухонные гарнитуры
Эргономика кухни высота шкафов
102
Эргономика кухни Верхние шкафы
103
Планировка кухонного гарнитура конструктор
104
Планировка кухонного гарнитура конструктор
Фьюжн-al-03
105
Фьюжн-al-03
Кухонный гарнитур Симпл 2500
106
Кухонный гарнитур Симпл 2500
Чертеж кухни
107
Модули кухонные ikea габариты
108
Модули кухонные ikea габариты
Высота кухонной столешницы
109
Высота кухонной столешницы
Глубина кухни стандартная
110
Стандартная высота кухонного гарнитура
111
Стандартная высота кухонного гарнитура
Кухни Мария высота верхних шкафов
112
Кухонный модуль 700мм
113
Кухонный модуль 700мм

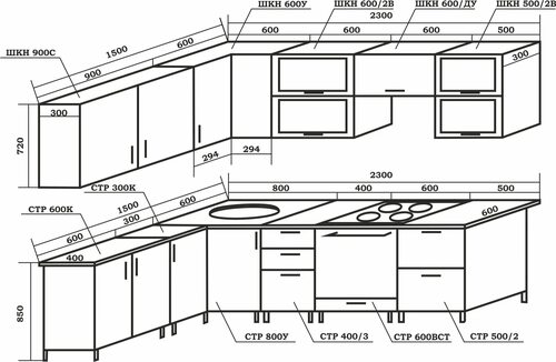
Стандартные размеры верхних шкафов кухни

Стандартные размеры верхних шкафов для кухни обычно варьируются от 30 до 36 дюймов в ширину и от 12 до 18 дюймов в глубину. Эти размеры позволяют установить шкафы на стандартной высоте от пола до потолка, обеспечивая оптимальное использование пространства.

Благодаря наличию многочисленных фотографий, вы сможете лучше представить, как верхние шкафы кухни соотносятся с размерами помещения и какие варианты оформления подходят именно для вашей кухни.

Оставьте комментарий

Ваш электронный адрес не будет опубликован.