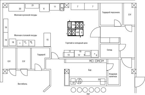
Планировка кухни в ресторане играет ключевую роль в организации рабочего пространства, обеспечивая эффективность и функциональность. В данной статье мы представим различные схемы планировки кухни в ресторане, сопровождая их фотографиями для наглядного представления.
 
  
  
  
  
  
  
  
  
  
  
  
  
  
  
  
  
  
  
  
  
  
  
  
  
  
  
  
  
  
  
  
  
  
  
  
  
  
  
  
  
  
  
  
  
  
  
  
  
  
  
  
 Схема \"Линейная планировка\"
Линейная планировка кухни в ресторане предполагает расположение оборудования и рабочих поверхностей в одну линию. Это позволяет оптимизировать использование пространства и обеспечивает удобство в работе. Ниже представлена схема линейной планировки с примерами реализации в реальных ресторанах.
...
 
  
  
  
  
  
  
  
  
  
  
  
  
  
  
  
  
  
  
  
  
  
  
  
  
  
  
  
  
  
  
  
  
  
  
  
  
  
  
  
  
  
  
  
  
  
  
  
  
  
  
  
 Схема \"Островная планировка\"
Островная планировка кухни в ресторане предполагает размещение оборудования и рабочих поверхностей на острове в центре кухни. Этот подход обеспечивает удобство в организации процессов приготовления блюд и создает эстетически привлекательное пространство. Ниже представлена схема островной планировки с примерами использования в различных ресторанах.
...
Благодаря нашей статье вы сможете получить полное представление о различных схемах планировки кухни в ресторане, а также найти вдохновение для создания уникального и функционального пространства.