Шведская стенка с турником и брусьями – отличное устройство для занятий спортом дома. Создание такой стенки своими руками не только экономично, но и позволяет адаптировать ее под ваши потребности. В данной статье мы подробно рассмотрим процесс создания шведской стенки с турником и брусьями, а также предоставим множество фотографий для наглядности.
 
  
  
  
  
  
  
  
  
  
  
  
  
  
  
  
  
  
  
  
  
  
  
  
 Выбор материалов
Первым шагом в создании шведской стенки с турником и брусьями является выбор подходящих материалов. Для изготовления рамы стенки вам понадобятся деревянные бруски, фанера, болты, гайки и другие крепежные элементы. Важно выбрать качественные материалы, которые обеспечат надежность конструкции.
 
  
  
  
  
  
  
  
  
  
  
  
  
  
  
  
  
  
  
  
  
  
  
  
  
  
 Создание чертежей и схем
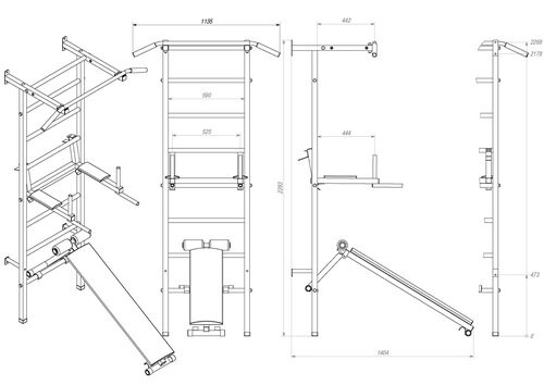
Прежде чем приступить к сборке, необходимо разработать подробные чертежи и схемы, отражающие размеры и конструкцию шведской стенки с турником и брусьями. Это поможет избежать ошибок и упростит процесс сборки.
 
  
  
  
 .jpg) 
  
  
  
  
  
  
  
  
  
  
  
  
  
  
  
  
  
  
  
  
  
 Сборка и монтаж
После подготовки материалов и чертежей можно приступать к сборке шведской стенки. Следуйте инструкциям и используйте фотографии для наглядности. Постепенно вы создадите удобную и функциональную конструкцию для занятий спортом.
 
  
  
  
  
  
  
  
  
  
  
  
  
  
  
  
  
  
  
  
  
  
  
  
  
  
 Заключение
Создание шведской стенки с турником и брусьями своими руками – увлекательный и полезный процесс. Надеемся, что наша статья поможет вам в этом деле, а множество фотографий облегчит вам визуализацию процесса. Удачи в творчестве!